Kohdekuvaus
Valoisa yksiö 3. kerroksessa omalla lasitetulla parvekkeella. Asunto sijaitsee 06/2020 valmistuvassa As Oy Kurjenlinnan Portissa Kurjenmäessä Kupittaan palveluiden läheisyydessä. Asunto on vuokrattavissa 07/2020 alkaen.
Asunto on kaunis ja laadukkaasti suunniteltu kokonaisuus. Kohteen suunnitelleen Schauman Arkkitehdit Oy:n mukaan asuntojen suunnittelun lähtökohtana ovat olleet toimivat ja valoisat huonetilat sekä tilavat parvekevyöhykkeet. Tämä näkyy huolella mietityissä asuntojen sijoittelussa sekä suurissa valoa tuovissa ikkunoissa.
Lattiat ovat laadukasta vaaleaa tammiparkettia ja asunnon yleisilme maalattu skandinaavisen vaaleaksi. Asumismukavuutta lisää vesikiertoinen lattialämmitys. Mustavalkoinen keittiö luo asuntoon ajattoman ja tyylikkään vaikutelman. Keittiön ja eteisen kaapistot ovat mattavalkoisia mustilla vetimillä. Musta työskentelytaso jäntevöittää kokonaisuuden. Keittiössä on haluttu lisätä säilytystilan määrää, jolloin kokonaisuudesta syntyy rauhallinen tunnelma tavaroiden mahtuessa kaapistoihin. Integroidut kodinkoneet rauhoittavat keittiönäkymää edelleen, mikä lisää tilantuntua.
Kylpyhuone on laatoitettu vaalean sävyin ja tilaa raikastaa katon tervaleppäpanelointi. Tilavaan kylpyhuoneeseen on lisätty tilavaraus pesutornille.
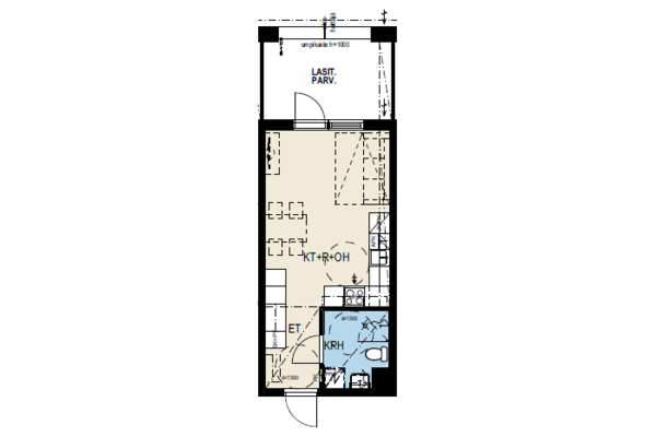
Asunnossa on lasitettu parveke, jolle voit luoda oman kaupunkikeitaasi tai rentoutumispaikan. Lasitus mahdollistaa fiilistelyn pitkälle syksyn pimeneviin iltoihin ja kevään ensimmäisten säteiden taltioimisen.
Taloyhtiö
- Taloyhtiön nimi
- As Oy Turun Kurjenlinnan Portti
- Osoite
- Kurjenmäenkatu 8, 20700 Turku
- Uudiskohde
- Kyllä
- Rakennusvuosi
- 2020
- Rakennuksen tyyppi
- Kerrostalo
- Kerroksia
- 6
- Asuinhuoneistoja
- 55
- Hissi
- Kyllä
- Yhtiön yhteiset tilat
- Ulkoiluvälinevarasto, huoneistokohtaiset irtainvarastot, väestönsuoja
- Taloyhtiössä on sauna
- Ei
- Antenni
- Kaapeli-TV
- Energialuokka
- B
- Taloyhtiön kuvaus
- Yhtiö sijaitsee Kurjenmäessä Kupittaan palvelualueen läheisyydessä kauniissa ja vehreässä miljöössä. Läheltä löytyvät kaikki keskeiset palvelut ja erinomaiset julkisenliikenteen yhteydet tekevät kaupungin eri toiminnot saavutettaviksi. Taloyhtiö on uusi ja se on haluttu suunnitella moderniksi ja kauniiksi kokonaisuudeksi, jossa arki on sujuvaa. Asuntojen materiaalivalintoihin ja tilaratkaisuihin on pyritty kiinnittämään erityistä huomiota asukasta ajatellen.
Perustiedot
- Osoite
- Kurjenmäenkatu 8 A 15, 20700 Turku
- Alue / Kaupunginosa
- Kurjenmäki
- Käyttöönottovuosi
- 2020
- Asumistyyppi
- Vuokra
- Kerros
- 3/6
- Pinta-ala
- 27,5 m²
- Huoneistotyyppi
- 1 h + kt
- Huoneluku
- 1
- Kunto
- Erinomainen
- Kunnon lisätiedot
- Uudiskohde
- Keittiön varusteet
- 4-levyinen induktioliesi + kalusteuuni, integroitu jääkaappipakastin, astianpesukone, tilavaraus mikroaaltouunille, keittiön välitilavalaistuksena Led-listavalot.
- Kylpyhuoneen varusteet
- Wc, suihku, liitäntävalmius pesukoneelle (tilaa pesutornille), lattialämmitys, allaskaappi, koukusto, wc-paperiteline ja suihkuseinäke
- Pintamateriaalit
- Valkolakattu 3-sauvainen tammiparkettilattia, seinät maalattu. Laatoitettu kylpyhuone, jossa tervaleppäpaneloitu katto
- Erilliset säilytystilat
- Irtaimistovarasto kellarissa
- Parveke
- Lasitettu parveke
- Ikkunoiden suunta /näkymä
- Luoteeseen, näkymä keskustan/Kupittaan suuntaan
- Lisätietoja
- Asumismukavuutta lisää vesikiertoinen lattialämmitys. Asunnon ilmanvaihtojärjestelmänä on huoneistokohtainen tulo-poistoilmanvaihtojärjestelmä lämmön talteenotolla (LTO). Ikkunoihin on asennettu sälekaihtimet. Huoneistossa on ovipuhelin ja paloturvallisuudesta vastaa verkkovirtatoiminen palovaroitin.
- Erityisehdot
- Vuokralaisella on oltava kotivakuutus vastuuosineen. Kohde on savuton. Lemmikit sopimuksen mukaan.
- Lisätietoja vapautumisesta/Vapautuu
- 1.7.2020 / Vuokrattavissa
- Vuokra-aika
- Toistaiseksi voimassa oleva vuokrasopimus, joka on mahdollista irtisanoa päättymään vuoden kuluttua sen alkamisesta. Aikaisemmasta irtisanomisesta sopimussakko on kahden kuukauden vuokraa vastaava summa.
- Vuokrattavissa
- 1.7.2020
Hintatiedot ja muut kustannukset
- Vuokra
- 620,00 €/kk
- Vuokravakuus
- 1 240,00 €
- Vesimaksu
- 20,00 €/hlö/kk Vesimaksu tasataan todellista kulutusta vastaavaksi. Asunnossa on oma mittari.
- Sähkömaksu
- Asukas tekee oman sähkösopimuksen energiayhtiön kanssa.
- Internet-yhteys
- 10 Mb/s internetyhteys 2,60 €/kk. Nopeampi yhteys sovittavissa erikseen operaattorin kanssa.
- Autopaikat
- Vuokrataan erikseen.